
This is how it will look




Garden level

On the garden level, there are three ground-level flats with up to 71 square meters of spacious living space.
and a terrace, which allows enjoyment of the fresh Mosel-river air all year long.
Some flats are barrier-free and have a wheelchair-accessible entrance.
Each flat is individual in terms of furnishings and square footage:
WE1 - 53.50 m2
WE2 - 71.56 m2
WE3 - 58.79 m2
(The information is without guarantee and the project developer reserves the right to make changes)

Ground floor

There are 4 flats on the ground floor with up to 61 square meters of living space. ​
Wheelchair-accessible, barrier-free access is guaranteed.​
The spacious living layout and efficient plan also allow young couples to live comfortably in this historic house.
Large windows provide a bright ambience and terraces/balconies allow for a breath of fresh air.​
​
Here, too, the flats can be individually furnished and come in different sizes:​
WE4 - 54.02 m²
WE5 - 61.82 m²
(The information is without guarantee and the project developer reserves the right to make changes)
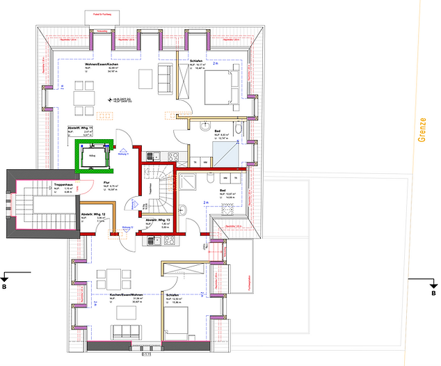
First Floor

The 3 luxurious and elegantly developed flats on the 1st floor are easily accessible via a lift, but also via the historic staircase.​
One of the flats has 4 oversized, historic arched windows that provide lots of light and a bright atmosphere. A large terrace also leads from this flat to the roof of the ground floor below.
WE8 - 33.53 m²
WE9 - 58.99 m²
WE10 - 56.40 m²â€‹
(The information is without guarantee and the project developer reserves the right to make changes)

Top Floor

On the top floor of the house, 2 flats in an unobstructed design invite for elegant living.
Cosy, high-pitched roofs and oversized gable windows, combined with a generous room layout, allow residents to live in a homely ambience without being restricted in comfort.
The flats can also be reached by lift or via the historic staircase.
WE11 - 61.24 m²
WE12 - 53.87 m²
(The information is without guarantee and the project developer reserves the right to make changes)
​
Attic

This 61m2 attic flat can only be reached via a private staircase (no lift) from the top floor below.
In addition to an elegant living room with an integrated kitchen that invites you to socialize, it offers a spacious bedroom with a separate bathroom and hallway
​
WE13 - 61.00 m²
​
(The information is without guarantee and the project developer reserves the right to make changes)

